Case施工事例

【動画で見る】ルームツアー

22/01/20

築47年の昭和マンションが激変!3LDKを自由自在に作り変える【動画】「魔法のリノベ」が凄すぎた…。【ルームツアー】梅津グランドハイツ

「古くて使いにくい…」そんな築47年のマンションが、最新の機能とデザインで生まれ変わりました!

今回の見どころは、なんといっても「可動式収納」。 ライフスタイルに合わせて、ご自身の手で間取りを2LDKや3LDKに自由自在に変えられる画期的な仕組みをご紹介します。

 リフォームやリノベーションを検討中の方はもちろん、マンション購入をお考えの方もぜひ参考にしてください!

この物件は、弊社のマンションリフォーム 施工事例 「実物版」シリーズ
弊社施工事例の実物を見よう!の企画物件です

●この企画の始まり

マンションリフォーム施工事例「実物版」企画とは、
弊社の施工事例を「写真等」ではなく「実物」を見て頂きながら、
リフォームのご相談を受けさせていただく企画です。

「カタログの写真では素敵に見えるけれど、わが家だとどうなるの?」
「高い買い物だから、絶対に失敗したくない。」
そんな不安を抱えていらっしゃいませんか?

私たちは、お客様のその不安に寄り添いたいと考えました。
そこで始まったのが、
マンションリフォーム施工事例「実物版」企画です。

モデルルームのような「見せるための部屋」ではなく、
実際に弊社が買取・再生し、これから誰かが暮らす「本物の住まい」をご覧いただけます。
壁紙の質感、床の踏み心地、最新設備の使い勝手。
ぜひ、あなたの目で確かめ、気になることはその場で何でも質問してください。

そういう企画です。


●大きなリフォーム工事は、金額も大きい反面何かと不安があるものです。
それゆえ、実際の仕上がりを見ていだく。
その上で、ご質問などしていただく。
そうすれば、少しは安心していただけるかなとの思いから始めています。

※会場は弊社が中古物件を買取・再生・販売する物件です。
完成から販売までの期間限定で行っています。
そのため、(※工事中や)売却済みの場合は行っていません。ご了承ください。
※ご希望があれば工事中の見学はできます。

●マンションリフォーム事例、この企画にお客様が参加するメリットを整理しました。
「実物版」それゆえ分かる3つのこと

1つ目は、リアルなサイズ感 
写真では広く見えがちな空間も、実際に立つことで家具の配置や動線がイメージしやすくなります。

2つ目は、細部のこだわりと技術
「実物」それゆえに壁の隅々や建具の収まりなど、職人の丁寧な仕事ぶりを直接チェックできます。

3つ目は、工事中の「裏側」も公開
(※希望者のみ) 完成後には見えなくなる配管や断熱材など、住まいの安心を支える構造部分ゆえに、見たい部分も見学可能です。

お住まいのリフォーム相談承っております。
弊社の再生販売物件のようなリフォームに関心がおありでしたら、ぜひご連絡下さい
当然概算お見積りは無料です。

■梅津グランドハイツ「間取り・写真」

モデルルーム仕様のフルリノベーション

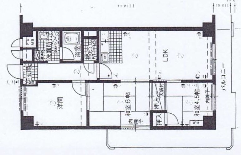
Before 施工前平面 3LDK
After 施工後平面 3LDK
オリジナル家具移動により2SLDK・2LDK
オリジナル家具移動により3LDK・2LDK

設計概要

●スケルトン状態から間取りを設計・施工。
スケルトンゆえにできる見えない部分のこだわった造り。

●見えない部分と同じく、設備は選び抜かれた充実した機能付き。
さらにリビングには床暖房を設置。各所に間接照明。高級感あるオシャレな仕様。
●オリジナル稼働式家具を設置。そうすることで間取りを自由に変更できる。
●防音・防振・断熱施工


○スケルトン状態から施工で室内は全て新品
○床暖房・食洗器・浴室暖房・全室2重ペアサッシ
○間接照明、ダウンライト、調光スイッチ
○全室エアコン先行配管済
○カップボード・玄関収納・ホシ姫
○照明器具・カーテン・可動式収納 等々

【施工中】

【解体後・スケルトン状態】

【施工前・解体前の室内】

──建築・リノベーション・購入・売却──
「住まいに関わる全て フォルトナグループ」

フォルトナハウス 京都

一覧へもどる >>