【動画で見る】施工中の現場
25/09/30
解体から完成までの90日間を凝縮。マンションリノベの裏側を【動画】で公開。
<フォルトナグループのマンション再生リフォーム>
【全記録】マンションリノベの工事って何をするの?
なかなか見れない現場の風景だから、かわりに現場のリアルに密着!
築42年のマンションをフルリノベーションしました。
古い間取りからどうやって理想の住まいを造り上げるのか、その全記録をご覧ください。
マンションを一度「スケルトン(何もない)」状態に戻し、
そこから新しい住まいを造り上げていくフルリノベーション90日の記録を凝縮です。
何もない空間に図面をもとにラインを引き、配管を通し、床を組み、壁を立てていく様子は、
まさに職人の技の集大成。 普段は見ることができない「壁の裏側」や「床下の構造」など、
リフォームにおける重要工程を時系列に沿ってご紹介します。
完成ルームツアーの前に、これを見てほしい。
▼工事のポイント(時系列順)
- スケルトン解体と墨出し:
すべての壁を撤去し、何もない床に実寸大の設計図を描く「墨出し」が全ての基準となります。 - 緻密な木工事(下地作り):
狂いのないよう丁寧に組まれた木製の下地が、真っ直ぐな壁と強固な構造を作ります。 - 設備・インフラの更新:
ユニットバスの先行設置や、床暖房パネルの敷設など、見えない部分の快適性を追求しています。 - こだわりの二重床:
防音・断熱性を高めるための二重床構造。合板を重ねて貼ることで、たわみのないしっかりとした足元を実現します。 - 職人による美しい仕上げ:
プラスターボードの継ぎ目を処理し、クロスを貼ることで、空間が一気に「家」へと変化します。
<お住まいのリフォーム相談承っております。>
弊社の再生販売物件のようなリフォームに関心がおありでしたら、ぜひご連絡下さい
当然概算お見積りは無料です。
<マンション工事中動画・物件概要>
リノベーション施工事例 「実物版」 シリーズ企画物件
所在地:京都市右京区梅津
マンション名:コープ野村京都四条
建物:1982年(昭和57年)築
総戸数:212 戸
リフォーム施工:フォルトナハウス(フォルトナグループ)
工事内容
・スケルトン解体からの自社再生リフォーム
・配管・配線、内部構造すべて新設

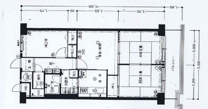
解体前の間取りです。
すべて解体、そしてスケルトンにして下記の間取りに作り変えます。

<マンションリフォーム 施工事例 「実物版」シリーズ企画物件>
弊社施工事例の実物を見よう!
「カタログの写真では素敵に見えるけれど、わが家だとどうなるの?」
「高い買い物だから、絶対に失敗したくない。」
そんな不安を抱えていらっしゃいませんか?
そこで私たちは、お客様のその不安に寄り添いたいと考えました。
そして始まったのが、
マンションリフォーム施工事例「実物版」企画です。
モデルルームのような「見せるための部屋」ではなく、
実際に弊社が買取・再生し、そしてこれから誰かが暮らす「本物の住まい」をご覧いただけます。
壁紙の質感、床の踏み心地、そして最新設備の使い勝手。
ぜひ、あなたの目で確かめてください。
大きなリフォーム工事は、金額も大きい反面何かと不安があるものです。
それゆえ、実際の仕上がりを見ていだく。
その上で、ご質問などしていただく。
そうすれば、少しは安心していただけるかなとの思いから始めています。
※会場は弊社が中古物件を買取・再生・販売する物件です。
そして完成から販売までの期間限定で行っています。
そのため、(※工事中や)売却済みの場合は行っていません。ご了承ください。
※ご希望があれば工事中の見学はできます。
──建築・リノベーション・購入・売却──
「住まいに関わる全て フォルトナグループ」
フォルトナハウス 京都
一覧へもどる >>